Langeoog
In unmittelbarer Nähe zur Fußgängerzone von Langeoog und dennoch ruhig gelegen in einem grünen Stichweg entstehen die exklusiven Ferienhäuser Haus Casper und Haus Christine.
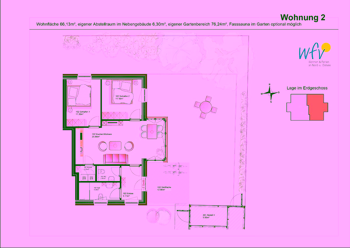
Haus Casper umfasst fünf individuell gestaltete Ferienwohnungen mit Wohnflächen zwischen 66,42 m² und 80,48 m². Drei der Wohnungen im Erdgeschoss verfügen über großzügige, private Gärten – eine davon ist als Maisonette mit zusätzlicher Dachterrasse konzipiert. Im Dachgeschoss sowie im Spitzboden befinden sich zwei weitere Maisonette-Wohnungen, jeweils mit eigener Dachterrasse.
Haus Christine bietet vier Ferienwohnungen mit Wohnflächen von 59,07 m² bis 65,85 m². Zwei der Einheiten verfügen über private Gartenbereiche, die übrigen zwei sind als Maisonette-Wohnungen ausgeführt.
Zur hochwertigen Ausstattung zählen maßgeschneiderte Möblierung und moderne Einbauküchen. Sechs der insgesamt neun Wohnungen verfügen zudem über eine eigene Sauna – all dies ist im Kaufpreis enthalten.
Beide Gebäude werden als KfW-40-Effizienzhäuser errichtet. Im Anschluss wird eine QNG-Nachhaltigkeitszertifizierung durchgeführt. Die Fertigstellung ist für Mai 2025 geplant. Ausgestattet sind die Häuser mit Wärmepumpen sowie jeweils einer ca. 10 kWp starken Photovoltaikanlage inklusive Speicher.
Ein besonderes Finanzierungsangebot: Käufer können eine KfW-Förderung in Höhe von 150.000 € pro Wohneinheit zu einem Zinssatz von 1 % übernehmen – kostenfrei vom Verkäufer.
Für weiterführende Informationen und ein ausführliches Exposé stehen wir Ihnen jederzeit gerne zur Verfügung.
In unmittelbarer Nähe zur Fußgängerzone von Langeoog und dennoch ruhig gelegen in einem grünen Stichweg entstehen die exklusiven Ferienhäuser Haus Casper und Haus Christine.
Haus Casper umfasst fünf individuell gestaltete Ferienwohnungen mit Wohnflächen zwischen 66,42 m² und 80,48 m². Drei der Wohnungen im Erdgeschoss verfügen über großzügige, private Gärten – eine davon ist als Maisonette mit zusätzlicher Dachterrasse konzipiert. Im Dachgeschoss sowie im Spitzboden befinden sich zwei weitere Maisonette-Wohnungen, jeweils mit eigener Dachterrasse.
Haus Christine bietet vier Ferienwohnungen mit Wohnflächen von 59,07 m² bis 65,85 m². Zwei der Einheiten verfügen über private Gartenbereiche, die übrigen zwei sind als Maisonette-Wohnungen ausgeführt.
Zur hochwertigen Ausstattung zählen maßgeschneiderte Möblierung und moderne Einbauküchen. Sechs der insgesamt neun Wohnungen verfügen zudem über eine eigene Sauna – all dies ist im Kaufpreis enthalten.
Beide Gebäude werden als KfW-40-Effizienzhäuser errichtet. Im Anschluss wird eine QNG-Nachhaltigkeitszertifizierung durchgeführt. Die Fertigstellung ist für Mai 2025 geplant. Ausgestattet sind die Häuser mit Wärmepumpen sowie jeweils einer ca. 10 kWp starken Photovoltaikanlage inklusive Speicher.
Ein besonderes Finanzierungsangebot: Käufer können eine KfW-Förderung in Höhe von 150.000 € pro Wohneinheit zu einem Zinssatz von 1 % übernehmen – kostenfrei vom Verkäufer.
Für weiterführende Informationen und ein ausführliches Exposé stehen wir Ihnen jederzeit gerne zur Verfügung.
Fertigstellung: 01.06.2025
Kaufpreis: auf Anfrage
Weitere Informationen auf Anfrage.
Die Immobilie befindet sich auf der Nordseeinsel Langeoog, nur wenige Gehminuten vom weitläufigen Sandstrand entfernt. In direkter Umgebung finden sich zahlreiche Restaurants, Cafés, Bäckereien, Ärzte und Supermärkte. Ebenfalls fußläufig erreichbar sind Modegeschäfte, Grün- und Parkanlagen, ein Schwimmbad, eine Bar sowie eine Buchhandlung.
Sie sehen gerade einen Platzhalterinhalt von Google Maps. Um auf den eigentlichen Inhalt zuzugreifen, klicken Sie auf die Schaltfläche unten. Bitte beachten Sie, dass dabei Daten an Drittanbieter weitergegeben werden.
Mehr Informationen26465 Langeoog, Deutschland (auf Google Maps ansehen)
Ein Blick lohnt sich. Wir haben viele weitere spannende Immobilienangebote für Sie parat. Wir wünschen viel Freude bei der Durchsicht und freuen uns über Ihre Kontaktaufnahme!
Sie sehen gerade einen Platzhalterinhalt von Vimeo. Um auf den eigentlichen Inhalt zuzugreifen, klicken Sie auf die Schaltfläche unten. Bitte beachten Sie, dass dabei Daten an Drittanbieter weitergegeben werden.
Mehr InformationenSie sehen gerade einen Platzhalterinhalt von YouTube. Um auf den eigentlichen Inhalt zuzugreifen, klicken Sie auf die Schaltfläche unten. Bitte beachten Sie, dass dabei Daten an Drittanbieter weitergegeben werden.
Mehr InformationenSie müssen den Inhalt von reCAPTCHA laden, um das Formular abzuschicken. Bitte beachten Sie, dass dabei Daten mit Drittanbietern ausgetauscht werden.
Mehr InformationenSie müssen den Inhalt von reCAPTCHA laden, um das Formular abzuschicken. Bitte beachten Sie, dass dabei Daten mit Drittanbietern ausgetauscht werden.
Mehr Informationen